Poniższe schematy pochodzą z dokumentacji modelu Ford Capri Mk III.
Podzielone są na dwie części: dla modeli wcześniejszych, produkowanych do 01.1980,
i dla modeli późniejszych, produkowanych od 01.1980. Znaczących różnic pomiędzy
nimi nie ma - różnią się detalami, jak na przykład różne dodatkowe opcje.
Dodatkowo, schematy dla wcześniejszych modeli podzielone są na
arkusze odpowiadające blokom funkcjonalnym, zaś dla późniejszych
modeli - cały schemat przedstawiony jest na pojedyńczym arkuszu.
Przy schematach instalacji dla wcześniejszych wersji, poniżej
przedstawiony jest opis elementów występujących na schemacie.
Dodatkowo, zamieszczone są różne rysunki poglądowe. Te rysunki mogą
być również pomocne przy instalacji elektrycznej późniejszych modeli,
zwrócić należy jedynie uwagę, że ich numeracja odnosi się do schematów
wersji wcześniejszej.
Na wszystkich schematach przewody oznaczone są w sposób przedstawiony
poniżej.
Schematy:
Oznaczenie przewodów na schematach
Oznaczenie przewodów na schematach jest w następującej postaci:
numer kolor przekrój, przykładowo: 54-16 sw/gr-rt 2,5
Poszczególne składniki oznaczenia przewodów są następujące:
numer - numer obwodu
kolor - kolor przewodu, a jeśli przewód jest wielokolorowy, to oznaczenie jest w postaci kolor_podstawowy/kolor_dodatkowy
przekrój - przekrój przewodu wyrażony w mm2, jeżeli przekrój nie został podany, przyjmuje się że wynosi on 0,5mm2.
Kolory oznaczane są dwuliterowym skrótem, według następującego klucza:
bl - niebieski
br - brązowy
ge - zółty
gr - szary
gn - zielony
rs - różowy
rt - czerwony
sw - czarny
vi - fioletowy
ws - biały
Ford Capri Mk III do 01.1980
Schematy (wszystkie w postaci plików w formacie GIF, o wielkości 3308x2339 pikseli):
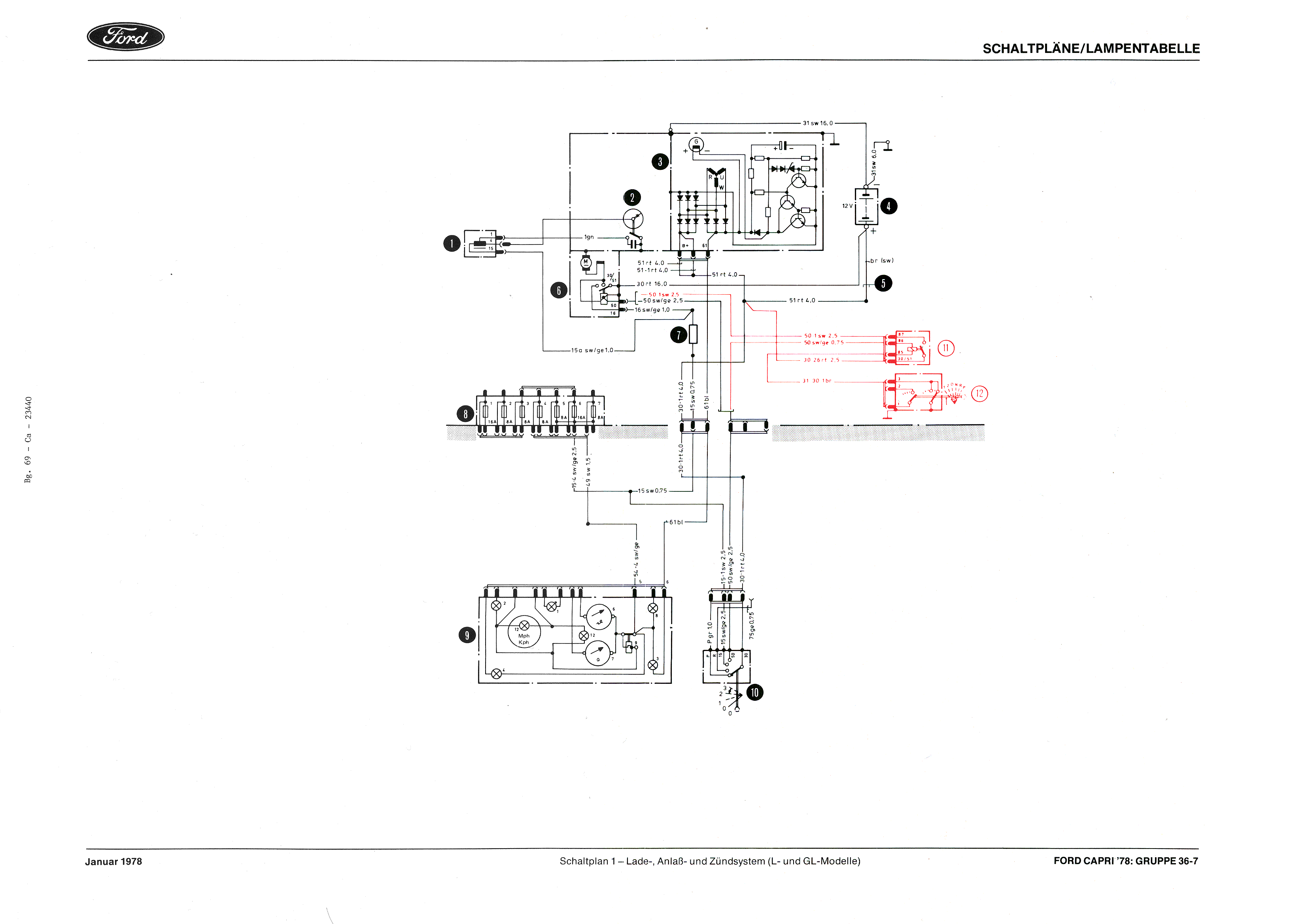
- wersja L i GL, obwody ładowania, rozrusznika i zapłonu [152 kB]
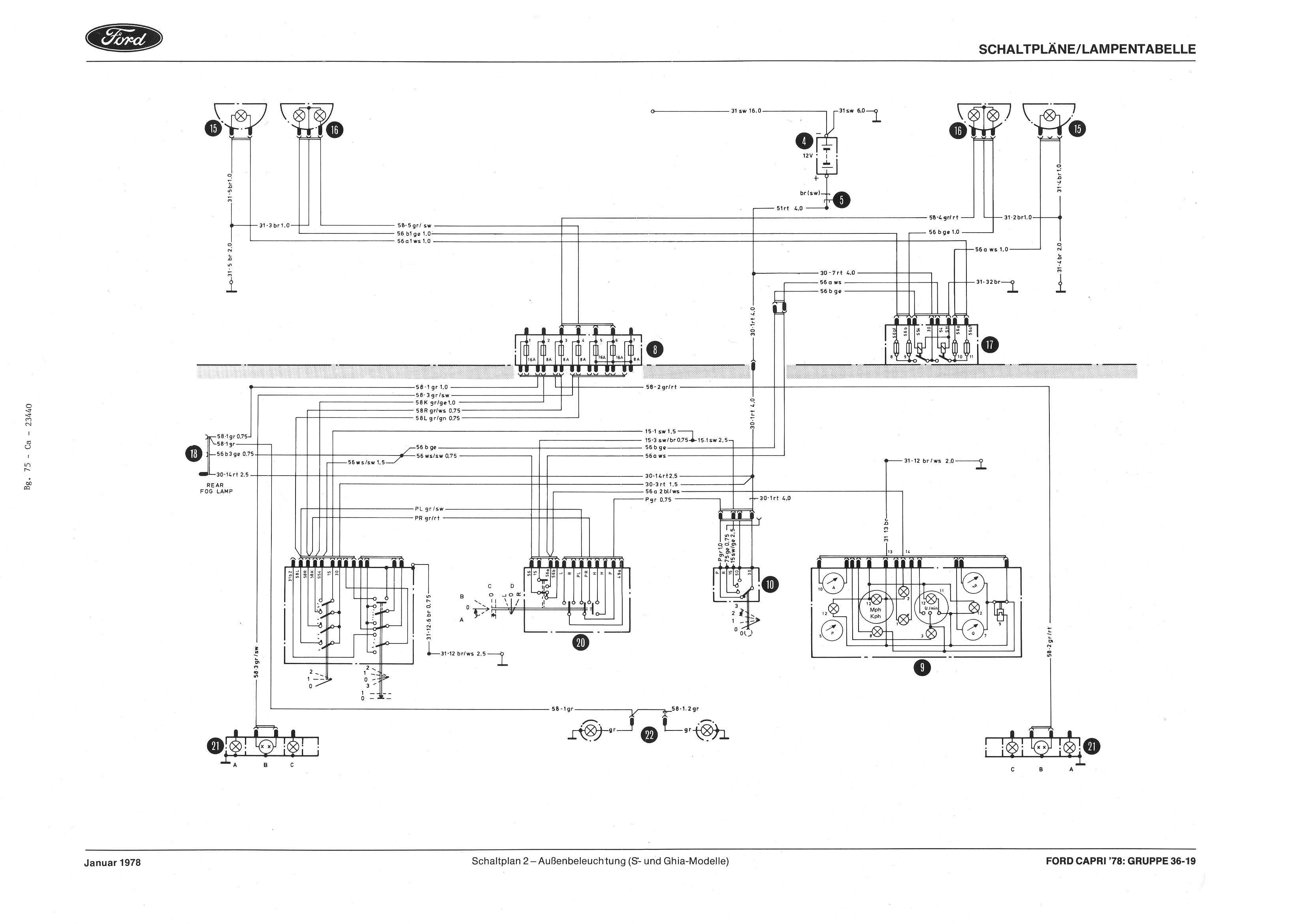
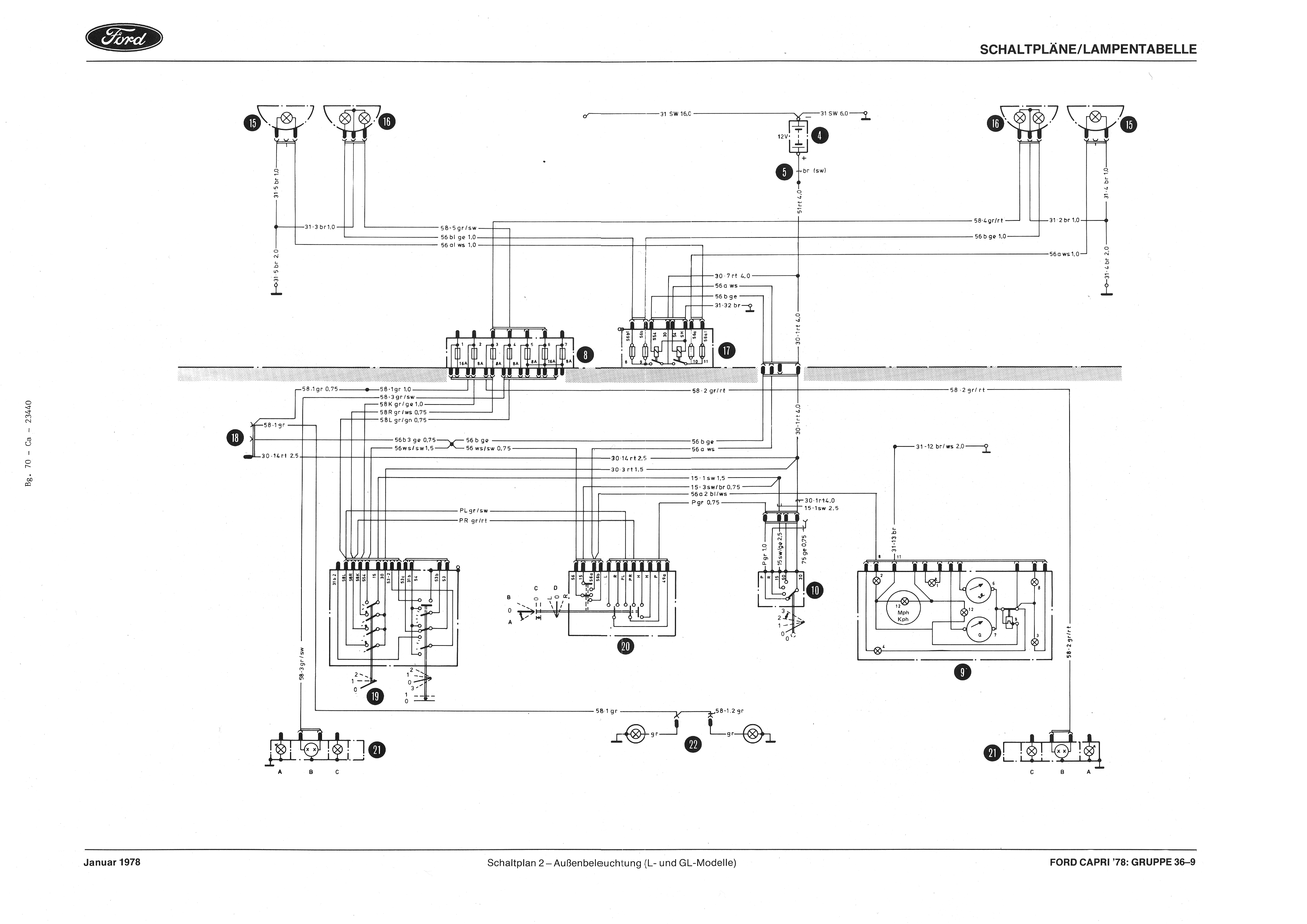
- wersja L i GL, obwody oświetlenia zewnętrznego [524 kB]
- wersja L i GL, obwody oświetlenia wewnętrznego [145 kB]
- wersja L i GL, obwody kierunkowskazów, świateł awaryjnych i klaksonu [225 kB]
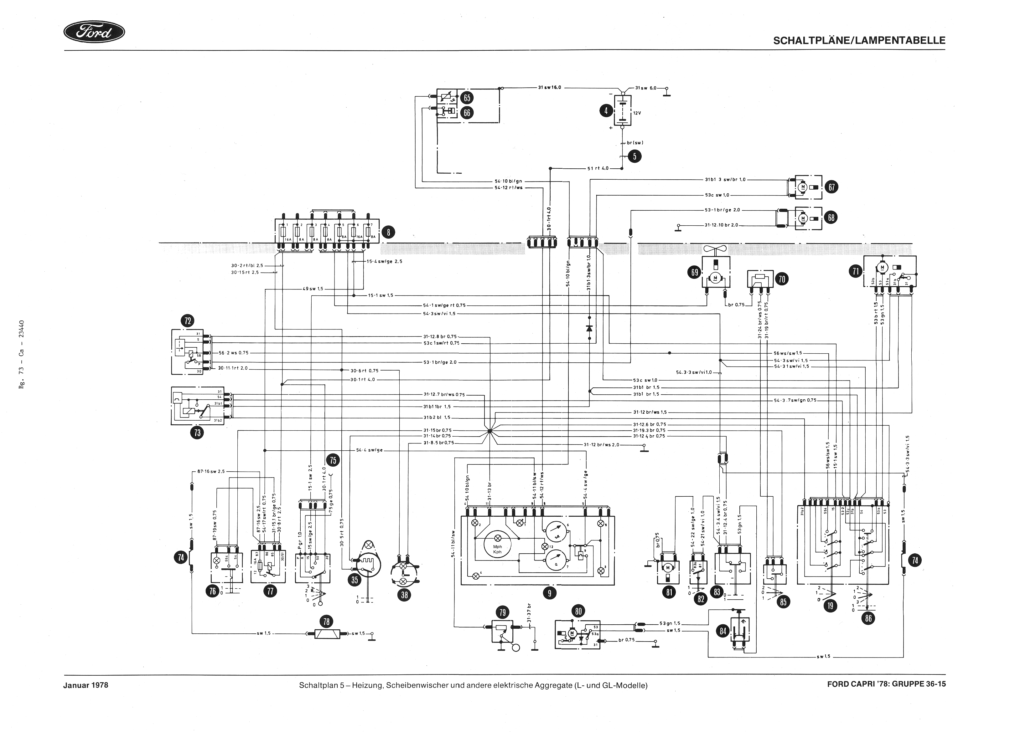
- wersja L i GL, obwody wycieraczek, ogrzewania i pozostałe [630 kB]
- wersja S i Ghia, obwody ładowania, rozrusznika i zapłonu [181 kB]
- wersja S i Ghia, obwody oświetlenia zewnętrznego [530 kB]
- wersja S i Ghia, obwody oświetlenia wewnętrznego [162 kB]
- wersja S i Ghia, obwody kierunkowskazów, świateł awaryjnych i klaksonu [219 kB]
- wersja S i Ghia, obwody wycieraczek, ogrzewania i pozostałe [637 kB]
- dodatki w wersji dla Szwecji [345 kB]
Poniżej przedstawiona została lista elementów występujących na schematach. Dodatkowo, dla niektórych elementów przedstawione zostały rysunki poglądowe. Elementy zaznaczone na czerwono są opcjonalne.
| 1 - | cewka zapłonowa |
| 2 - | rozdzielacz zapłonu |
| 3 - | alternator |
| 4 - | akumulator |
| 5 - | przewód pomiarowy amperomierza |
| 6 - | rozrusznik |
| 7 - | rezystor balastowy zapłonu |
| 8 - | skrzynka bezpieczników |
| 9 - | zestaw wskaźników |
| 1 - kontrolka kierunkowskazów | |
| 2 - kontrolka świateł drogowych | |
| 3 - kontrolka braku ładowania | |
| 4 - kontrolka ciśnienia oleju (L, GL) | |
| 5 - wskaźnik ciśnienia oleju (S, Ghia) | |
| 6 - wskaźnik temperatury silnika | |
| 7 - wskaźnik poziomu paliwa | |
| 8 - kontrolka ukladu hamulcowego/hamulec ręczny | |
| 9 - regulator napięcia | |
| 10 - amperomierz (S, Ghia) | |
| 11 - obrotomierz (S, Ghia) | |
| 12 - oświetlenie zestawu wskaźników | |
| 10 - | stacyjka |
| 0 - wyłączony | |
| 1 - urządzenia pomocnicze | |
| 2 - zapłon | |
| 3 - start | |
| 11 - | przekaźnik automatycznej skrzyni biegów |
| 12 - | przełącznik automatycznej skrzyni biegów |
| 15 - | reflektor - światła drogowe |
| 16 - | reflektor - światła mijania i pozycyjne |
| 17 - | przekaźnik świateł drogowych i mijania |
| 18 - | złącze świateł przeciwmgielnych |
| 19 - | włącznik świateł |
| 1 - światła pozycyjne, oświetlenie wewnętrzne | |
| 2 - światła drogowe | |
| 20 - | przełącznik zespolony |
| A - sygnał świetlny światłami drogowymi | |
| B - światła drogowe | |
| C - klakson | |
| D - kierunkowskaz | |
| 21 - | zespolone światło tylne |
| A - kierunkowskaz | |
| B - pozycyjne/stop | |
| C - cofanie | |
| 22 - | oświetlenie tablicy rejestracyjnej |
| 30 - | drzwiowy włącznik światła |
| 31 - | podświetlenie regulacji wentylacji i włącznika dmuchawy |
| 32 - | oświetlenie wewnętrzne nad drzwiami pasażera |
| 33 - | włącznik oświetlenia bagażnika |
| 34 - | oświetlenie bagażnika |
| 35 - | zapalniczka i podświetlenie zapalniczki |
| 36 - | włącznik oświetlenia schowka |
| 37 - | oświetlenie schowka |
| 38 - | zegarek i podświetlenie zegarka |
| 39 - | potencjometr regulacji oświetlenia deski rozdzielczej |
| 40 - | podświetlenie wskaźnika położenia dźwigni automatycznej skrzyni biegów |
| 44 - | kierunkowskaz, przód |
| 45 - | włącznik światła cofania (tylko manualna skrzynia biegów) |
| 46 - | włącznik świateł stop |
| 47 - | przerywacz kierunkowskazów |
| 48 - | klakson |
| 49 - | czujnik awarii układu hamulcowego |
| 50 - | włącznik kontrolki hamulca ręcznego |
| 51 - | włącznik świateł awaryjnych |
| 52 - | światło cofania (opcja, automatyczna skrzynia biegów) (???) |
| 53 - | boczne kierunkowskazy (opcja) |
| 65 - | czujnik temperatury silnika |
| 66 - | czujnik ciśnienia oleju |
| 67 - | pompka spryskiwacza przedniej szyby |
| 68 - | pompka spryskiwacza przednich reflektorów |
| 69 - | silnik dmuchawy |
| 70 - | rezystor regulacji prędkości dmuchawy |
| 71 - | silnik wycieraczki przedniej szyby |
| 72 - | przekaźnik spryskiwacza przednich reflektorów |
| 73 - | przekaźnik przerywanej pracy wycieraczek |
| 74 - | złącze ogrzewania tylnej szyby |
| 75 - | złącze zasilania radia |
| 76 - | włącznik ogrzewania tylnej szyby |
| 77 - | przekaźnik ogrzewania tylnej szyby |
| 78 - | ogrzewanie tylnej szyby |
| 79 - | czujnik poziomu paliwa |
| 80 - | silnik wycieraczki tylnej szyby |
| 81 - | pompka spryskiwacza tylnej szyby |
| 82 - | włącznik spryskiwacza tylnej szyby |
| 83 - | włącznik wycieraczki tylnej szyby |
| 84 - | złącze tylnej wycieraczki |
| 85 - | włącznik dmuchawy |
| 86 - | włącznik wycieraczki przedniej szyby |
| 90 - | światła przecimgielne przednie |
| 91 - | przekaźnik świateł przeciwmgielnych |
| 92 - | złącze świateł przeciwmgielnych |
| 93 - | złącze świateł przeciwmgielnych |
| 94 - | złącze świateł przeciwmgielnych |
| 95 - | złącze świateł przeciwmgielnych |
| 96 - | włącznik świateł przeciwmgielnych przednich |
| 97 - | włącznik świateł przeciwmgielnych tylnych |
| 98 - | złącze świateł przeciwmgielnych tylnych gdy nie ma przednich |
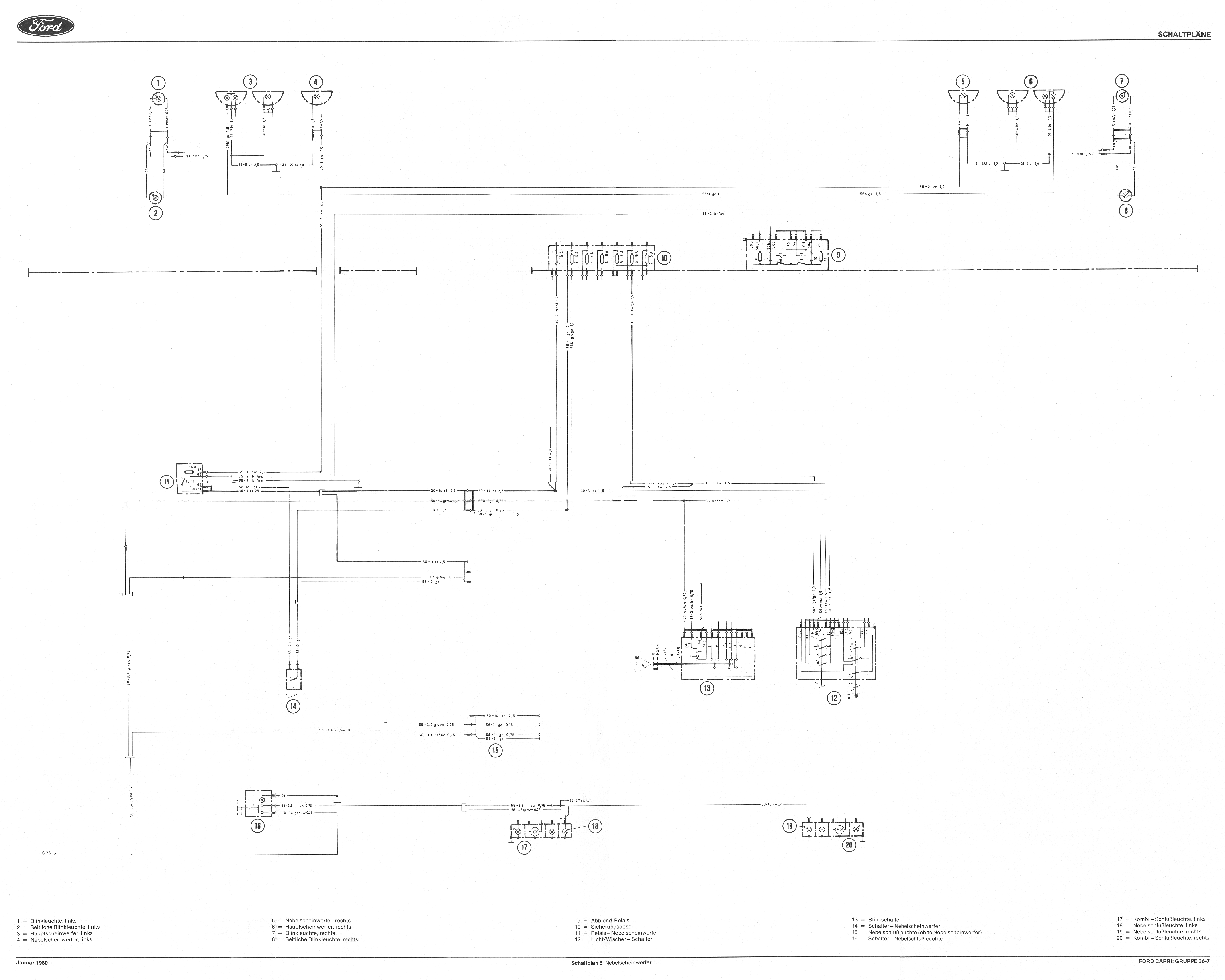
Ford Capri Mk III od 01.1980
Poniższe schematy są w postaci jednego arkusza, osobnego dla modeli L/GL
i S/Ghia, z manualną lub automatyczną skrzynią biegów. Pojedyńczy arkusz
jest kompletnym schematem, z opisem wszystkich elementów.
Wykaz elementów umieszczony powyżej NIE JEST ODPOWIEDNI dla poniższych schematów,
dotyczy on wersji wcześniejszej. Podobnie powyższe rysunki poglądowe
elementów dotyczą wersji wcześniejszej - jednak biorąc pod uwagę inną
numerację elementów, można z nich skorzystać.
Schematy (wszystkie w postaci plików w formacie GIF, o wielkości 5500x4400 pikseli):
- wersja L i GL, manualna skrzynia biegów [3203 kB]
- wersja L i GL, automatyczna skrzynia biegów [4160 kB]
- wersja S i Ghia, manualna skrzynia biegów [3110 kB]
- wersja S i Ghia, automatyczna skrzynia biegów [3456 kB]
- opcja - światła przeciwmgielne, dla wszystkich wersji [1596 kB]
- dodatki w wersji dla Szwecji [2993 kB]
- 2.8i - K-Jetronic i zapłon
